Rus |
Eng
Воздушные фильтры
Основные технические характеристики:
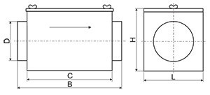
Фильтры для круглых каналов типа ФВ :

Пример обозначения


Корпус для фильтра ФВ-125
где: ФВ – тип фильтра;
125 – типоразмер (по присоединительному диаметру), мм.

Кассета сменная фильтрующая для ФВ-125 EU4

где: ФВ – тип фильтра;
125 – типоразмер корпуса фильтра (по присоединительному диаметру), мм;
EU4 – класс фильтра.

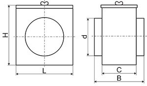
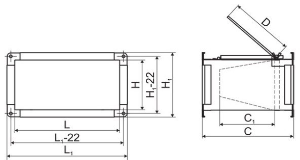
Фильтры могут быть установлены на горизонтальных и вертикальных участках воздуховодов. Крышка крепится к корпусу простыми защелками. Корпус фильтра снабжен патрубками для подсоединения воздуховодов или компонентов вентиляционной системы. Фильтрующий материал выполнен в виде панели из синтетического волокна и имеет класс очистки EU3, EU4, EU5, EU7, EU9. Корпус и крышка фильтра производят из оцинкованной стали, используется высокоэффективный фильтрующий материал, также предусмотрена замена фильтрующих элементов.

Технические характеристики фильтров типа ФВ (класс очистки EU3) :
Фильтры для круглых каналов типа ФВК :
Технические характеристики фильтров типа ФВК (класс очистки EU3)
Фильтры для прямоугольных каналов типа ФВП :
Технические характеристики фильтров типа ФВП (класс очистки EU3)
Фильтры для прямоугольных каналов типа ФЯГ :
Технические характеристики фильтров типа ФЯГ (класс очистки EU3)