Rus |
Eng
Автономные кондиционеры
Основные технические характеристики:
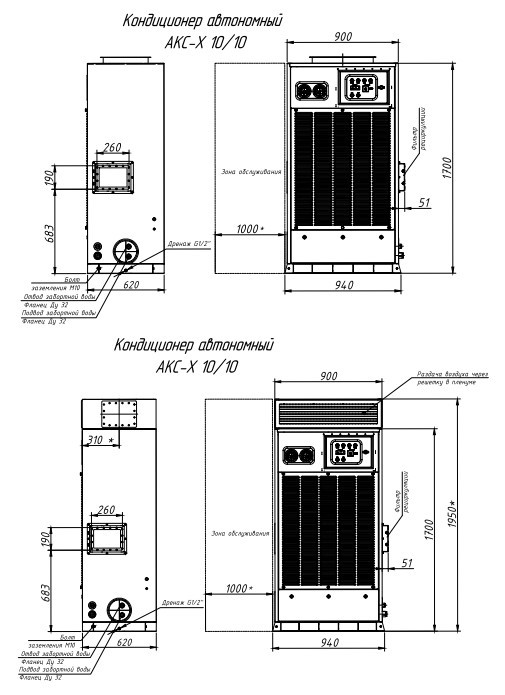
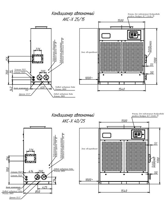
Габариты и присоединительные размеры :
Модельный ряд выпускаемых кондиционеров: 5 - 31,5 кВт
Производительность по воздуху 800 – 16000 м.куб/ч
Полное давление воздуха 1000 – 3000 Па
Холодопроизводительность 5 - 31,5 кВт
Теплопроизводительность 6 - 30 кВт
Расход охлаждающей воды 2 – 30 м.куб/ч
Напряжение питания 3 ф/400 В
Автономные кондиционеры судовые, выпускаемые ООО «Компанией «ХОТЧА», с парокомпрессионной холодильной машиной и водяным охлаждением конденсатора, предназначены для создания благоприятных температурно­влажностных условий воздуха в судовых системах кондиционирования воздуха. Оборудование также может применяться на береговых объектах, в промышленных системах вентиляции с повышенными требованиями к надежности климатического оборудования, в строительной индустрии.